
2 Bedroom/1.5 Bathroom Apartment in South San Clemente
Live the coastal lifestyle in this cozy updated upstairs unit of a duplex in south San Clemente, where you can bike to surf Trestles, a world famous surf break, and park your bike & boards in the garage. Downtown San Clemente on Avenida Del Mar is also a close bike ride away with a diverse array of shops, restaurants, bars and cafes. You can also find hiking and mountain biking trails right on the other side of the nearby San Clemente Municipal golf course and San Luis Rey Park with a playground and tennis courts just a 5 minute walk away.
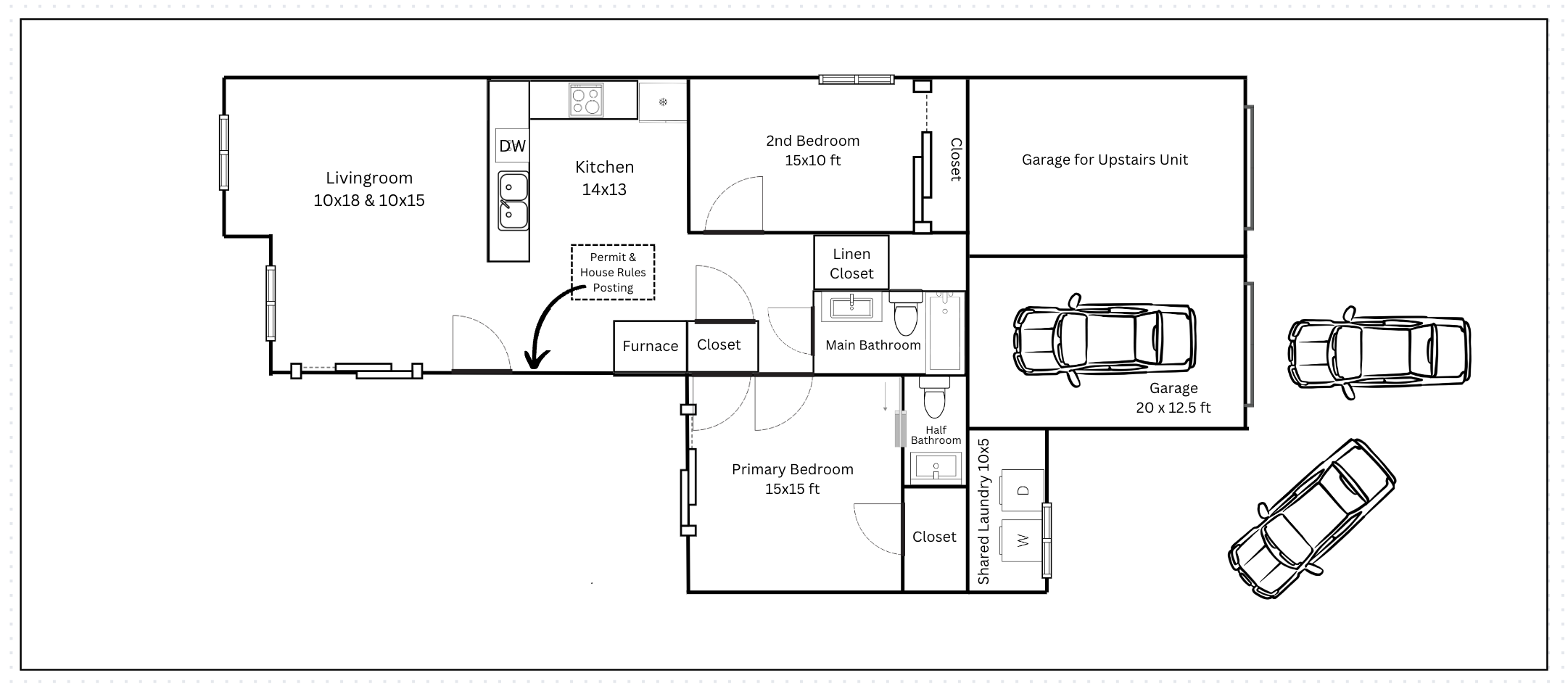
This upstairs unit has 2 spacious carpeted bedrooms with one ensuite half bath to the primary bedroom and a full bathroom in the hallway. The rest of the unit has new luxury vinyl flooring. The kitchen is fully equipped with brand new refrigerator, brand new dishwasher, gas range, and breakfast bar that connects to the spacious living room with bright windows to let the natural light in. The deck has been recently resurfaced and is a great place to watch the sunset.
The primary bedroom and living room both have double sliding glass doors to the deck for extra lighting. There are 3 parking spaces on-site, one in the garage and 2 in the shared driveway. Downstairs laundry is shared with downstairs tenants.
Tenant is responsible for paying electricity, gas and internet, while the owner will cover water, trash, sewage, and landscaping. Smoking is prohibited on the entire property. No pets please.
Don't miss this opportunity to live in one of the most desirable communities in southern California!
Initial lease is for 1 year. Please contact Marina by phone # below (call or text) for more information or to set up a private viewing.
Tenant is responsible for paying electricity, gas and internet, while the owner will cover water, trash, sewage, and landscaping. Smoking is prohibited on the entire property.Â
Bike and Surf Friendly!
Bike to Trestles in 6 minutes to enjoy world-class surfing and magnificent nature in the preserve.
Â

Apartment Layout
Â
Interested in Renting this Apartment?
Fill out the contact form below!